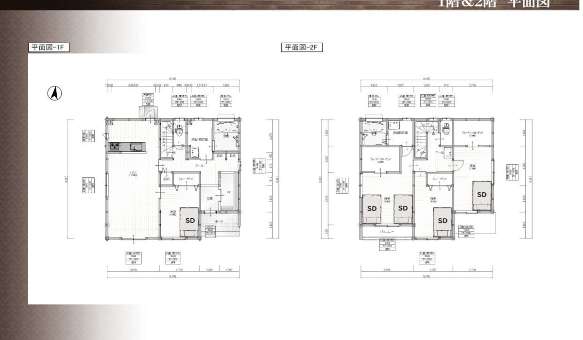
熊本県大津町、阿蘇国立公園に囲まれた自然豊かな環境に佇む「馥の森」。静かで快適なプライベート空間をご提供いたします。 広々とした一戸建ては、ご家族でのご滞在に最適です。室内は温かみのある落ち着いた雰囲気で、まるでご自宅のようにくつろいでお過ごしいただけます。お子様からご年配の方まで、安心してご利用いただけます。 周辺は生活利便性にも優れた、静かで安全な住環境。自然と利便性が調和する大津で、もう一つの我が家のような滞在をお楽しみください。
旅館業許可証 熊本県指令
菊保 第156号





















































_page-0001-600x600.jpg)
-600x600.jpg)
¥40,000/日
¥50,000/日
¥4,000/人
ご予約はお電話、または下記のプラットフォームよりお願いいたします。
姉妹館・大津国際交流会館1階では、台湾の特色ある料理を提供しております。
#朝食は事前のご予約にてご提供しております。
#コミュニケションルームは昼間、営業ランチ営業。





































_page-0001-1200x700.jpg)
-755x700.jpg)
チェックイン: 15:00~19:00
チェックアウト: 6:00~10:00
キャンセルポリシーおよび前払いの条件は、プランによって異なります。
チャイルドポリシー
ベビーベッド&エキストラベッドに関するポリシー
18歳未満のお客様のみでの宿泊はご遠慮頂いております
ペット宿泊不可
・駐車場:3台(無料)
駐車場は 3 台分ございます。無料でご利用いただけます。
馥の森から 肥後大津駅まで徒歩約9分。
チェックイン15:00~・チェックアウト10:00となっております。
(宿泊プランによって異なる場合がございますので、詳細は各宿泊プランをご確認ください。)
お一人様からご利用が可能です。
お部屋のタイプに応じて1名様から4名様までご利用可能です
copyright (c) 81886.shop all rights reserved.